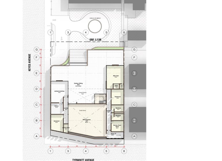
Concept Design for Girls’ Primary School
This is an initial concept design for a new mixed-used building for a Girls’ Primary School positioned within an urban setting. The design aims to maintain the integrity and beauty of the existing buildings while meeting the need for enhanced utilization of space and a fresh, modern feel.
- 2018
- Education & Sport
